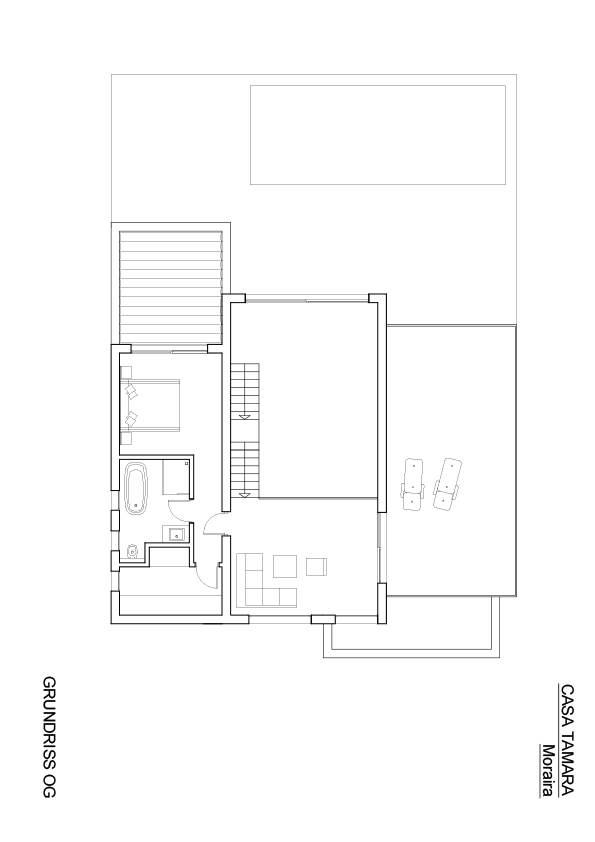
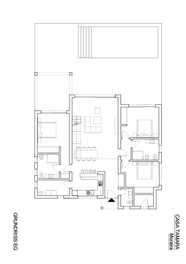
Freistehendes Einfamilienhaus mit Wohn- und Esszimmer, 4 Schlafzimmern, 3 Bädern, Terrassen und Pool.

Überbaute Flächen:

Überbaute Fläche Erdgeschoss: 159 m²
Überbaute Fläche Untergeschoss: 66 m²
Gesamtfläche Haus: 225 m²

Vordach: 3 m²
Freiterrassen: 134 m²
Wasserfläche Pool: 32 m²

Ausstattung:

  • Fussbodenheizung im ganzen Haus
  • Abgehängte Decken mit LED-Deckenstrahlern
  • Klimaanlage im Wohn- und Esszimmer sowie in allen Schlafzimmern
  • Offener Kamin
  • Glasbrüstungen auf allen Terrassen
  • Hochwertige Einbauküche
  • Einbauschränke mit Front aus satiniertem Glas
  • Video-Gegensprechanlage
  • Elektrisch betriebene Rolläden an allen Fenstern
  • Master-Bedroom mit Ankleide und Bad en Suite
  • Unterschränke und Glas-Duschwände in allen Bädern

Baupläne