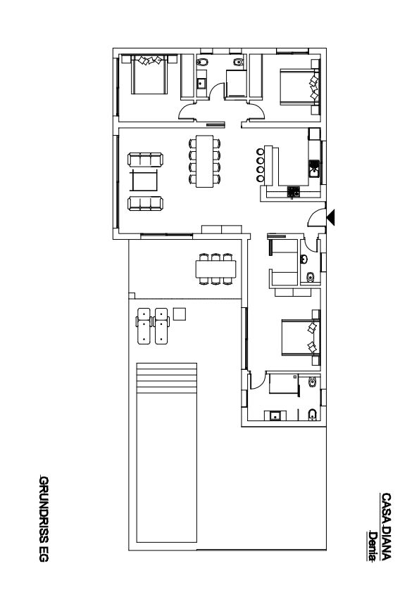
Freistehendes Einfamilienhaus mit Wohnzimmer, Esszimmer, 3 Schlafzimmern, 2 Bädern, Garage, Terrasse und Pool.

Überbaute Flächen:

Überbaute Fläche Erdgeschoss: 143 m²
Überbaute Fläche Untergeschoss: 62 m²
Gesamtfläche Haus: 205 m²

Überdachte Terrasse: 17 m²
Freiterrassen: 65 m²
Wasserfläche Pool: 27 m²

Ausstattung:

  • Fussbodenheizung im ganzen Haus
  • Abgehängte Decken mit LED-Deckenstrahlern
  • Klimaanlage im Wohn- und Esszimmer sowie in allen Schlafzimmern
  • Offener Kamin
  • Glasbrüstungen auf allen Terrassen
  • Hochwertige Einbauküche
  • Einbauschränke mit Front aus satiniertem Glas
  • Video-Gegensprechanlage
  • Elektrisch betriebene Rolläden an allen Fenstern
  • Master-Bedroom mit Ankleide und Bad en Suite
  • Unterschränke und Glas-Duschwände in allen Bädern
  • Garage mit elektrisch betriebenem Sektionaltor.

Baupläne