CASA LUISA
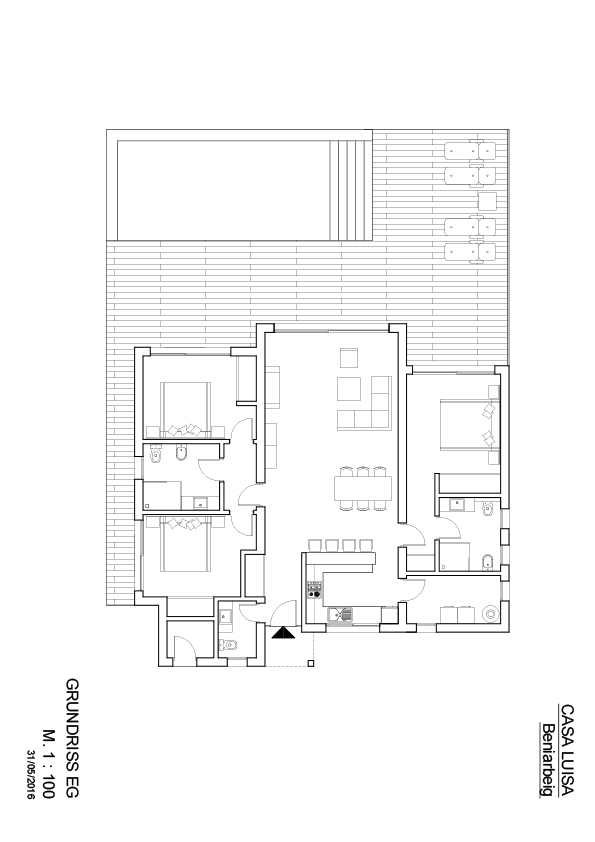
Freistehendes Einfamilienhaus mit Wohnzimmer, Esszimmer, 3 Schlafzimmern, 3 Bädern, Terrasse und Pool.
Überbaute Flächen:
Überbaute Fläche Erdgeschoss: 136 m²
Gesamtfläche Haus: 136 m²
Veranda: 2 m²
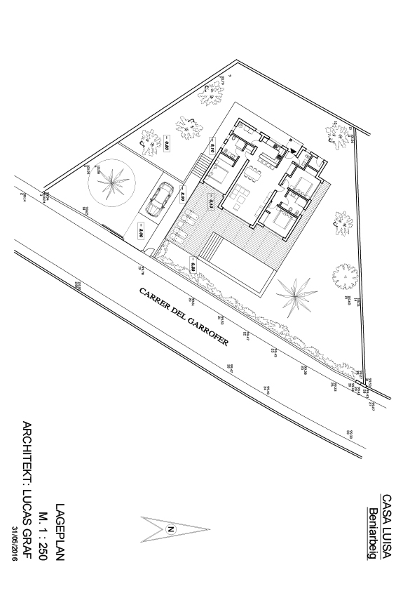
Freiterrassen: 60 m²
Wasserfläche Pool: 32 m²
Ausstattung:
- Fussbodenheizung im ganzen Haus
- Abgehängte Decken mit LED-Deckenstrahlern
- Klimaanlage im Wohn- und Esszimmer sowie in allen Schlafzimmern
- Glasbrüstungen auf allen Terrassen
- Hochwertige Einbauküche
- Einbauschränke mit Front aus satiniertem Glas
- Video-Gegensprechanlage
- Elektrisch betriebene Rolläden an allen Fenstern
- Master-Bedroom mit Ankleide und Bad en Suite
- Unterschränke und Glas-Duschwände in allen Bädern




