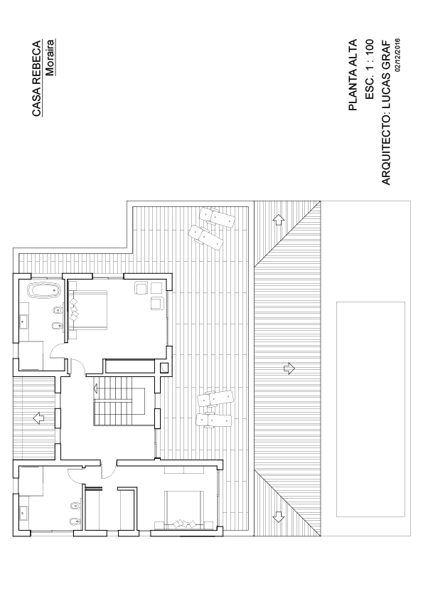
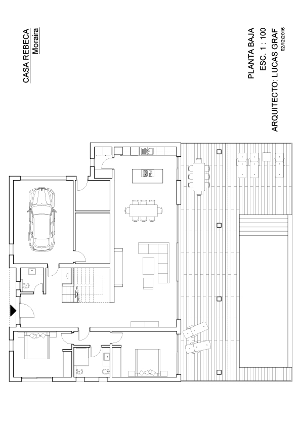
Freistehendes Einfamilienhaus mit Wohnzimmer, Esszimmer, 4 Schlafzimmern, 3 Bädern, Garage, Terrassen und Pool.

Überbaute Flächen:

Überbaute Fläche Erdgeschoss: 196 m²
Überbaute Fläche Obergeschoss: 108 m²
Gesamtfläche Haus: 304 m²

Überdachte Terrassen: 60 m²
Freiterrassen: 108 m²
Wasserfläche Pool: 38 m²

Ausstattung:

  • Fussbodenheizung im ganzen Haus
  • Abgehängte Decken mit LED-Deckenstrahlern
  • Klimaanlage im Wohn- und Esszimmer sowie in allen Schlafzimmern
  • Offener Kamin
  • Glasbrüstungen auf allen Terrassen
  • Hochwertige Einbauküche
  • Einbauschränke mit Front aus satiniertem Glas
  • Video-Gegensprechanlage
  • Elektrisch betriebene Rolläden an allen Fenstern
  • Master-Bedroom mit Ankleide und Bad en Suite
  • Unterschränke und Glas-Duschwände in allen Bädern
  • Masterbad mit freistehender Badewanne
  • Garage mit elektrisch betriebenem Sektionaltor.

Baupläne